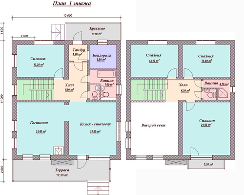
Описание
* - Базовая комплектация:
|
№ поз. |
Наименование |
Характеристики конструкций |
|
1 |
Фундамент |
Фундамент ленточный, монолитный армированный. Глубина заложения – 1,5 м, песчаная подсыпка 0,3 м. Марка бетона М 300, класс бетона не ниже В22, арматура рифленая кл.А3 D=12. Высота цоколя 0,5м, ширина фундамента 400 мм. Гидроизоляция – гидростеклоизол на битумной мастике. |
|
2 |
Стены наружные |
Блоки газосиликатные. Плотность D500, марка прочности В2.5. Толщина блока 300 мм. Сборка на клеевой состав, рекомендованный для газосиликатных блоков с армированием кладочной сеткой в рядах. Высота стены 1-го этажа 3,00 м. |
|
3 |
Перегородки внутренние |
Блоки газосиликатные. Плотность D500, марка прочности В2.5. Толщина несущей перегородки 300мм. Межкомнатных 100-200 мм. Сборка на клей для газосиликатных блоков. |
|
4 |
Оконные и дверные проемы |
Формирование дверных и оконных проемов в соответствии с рекомендациями завода изготовителя блоков. Установка входного металлического дверного блока. |
|
5 |
Межэтажное усиление |
Бетонный ростверк по стенам первого этажа. Арматура кл.А3 D=12 мм. Высота ростверка 200 мм. |
|
6 |
Перекрытия |
Перекрытия первого этажа – брус сечением 100х200 мм на ребро, шаг 600 мм. Черновой пол – доска обрезная 20…25 мм. Обработка деревянных конструкций огнебиозащитным составом. Перекрытия межэтажные – брус сечением 100х200 мм на ребро, шаг 600 мм. Черновой потолок – доска обрезная 20…25 мм. Обработка деревянных конструкций огнебиозащитным составом. |
|
7 |
Инженерные сети |
Ввод в помещение санузла (бойлерной) канализационной и водопроводной труб без подключения к внешним сетям. (При устройстве монолитного перекрытия фундамента). |
|
8 |
Внутренние перегородки мансарды |
Блоки газосиликатные. Плотность D500, марка по прочности В2.5. Толщина межкомнатных перегородок 100-200 мм. Сборка на клей. Деревянный каркас при отсутствии межэтажного монолитного перекрытия. Обработка деревянных конструкций огнебиозащитным составом. Высота мансардных перегородок 2,50 м. |
|
9 |
Кровля |
Стропильная система кровли – доска сечением 50х200 мм, усиленная спаренными ригелями, шаг от 600 мм. Покрытие – металлочерепица, по шаговой обрешетке с установкой подкровельной мембранной гидроизоляционной пленки. Потолок мансарды не подшивается. Обработка деревянных конструкций огнебиозащитным составом. УТЕПЛЕНИЕ КРОВЛИ минеральной ватой Rockwool - 150 мм |
Любые изменения в проекте вносятся БЕСПЛАТНО.
