Гостевой
Мы строим по государственным программам: «Материнский капитал», «Многодетная семья» и другие. На все виды работ предоставляется гарантия, наша компания имеет свое производство и свою лесозаготовку. Предоставляется беспроцентная рассрочка платежа до 6 месяцев.
Цена указанная за проект не является окончательной стоимостью возведения дома под «ключ». Стоимость может изменяться в зависимости от комплектации, наличие и фундамента и т. п., поэтому для того, чтобы узнать окончательную стоимость вам необходимо связаться с нами по телефону или оставить заявку на сайте на расчет стоимости проект.
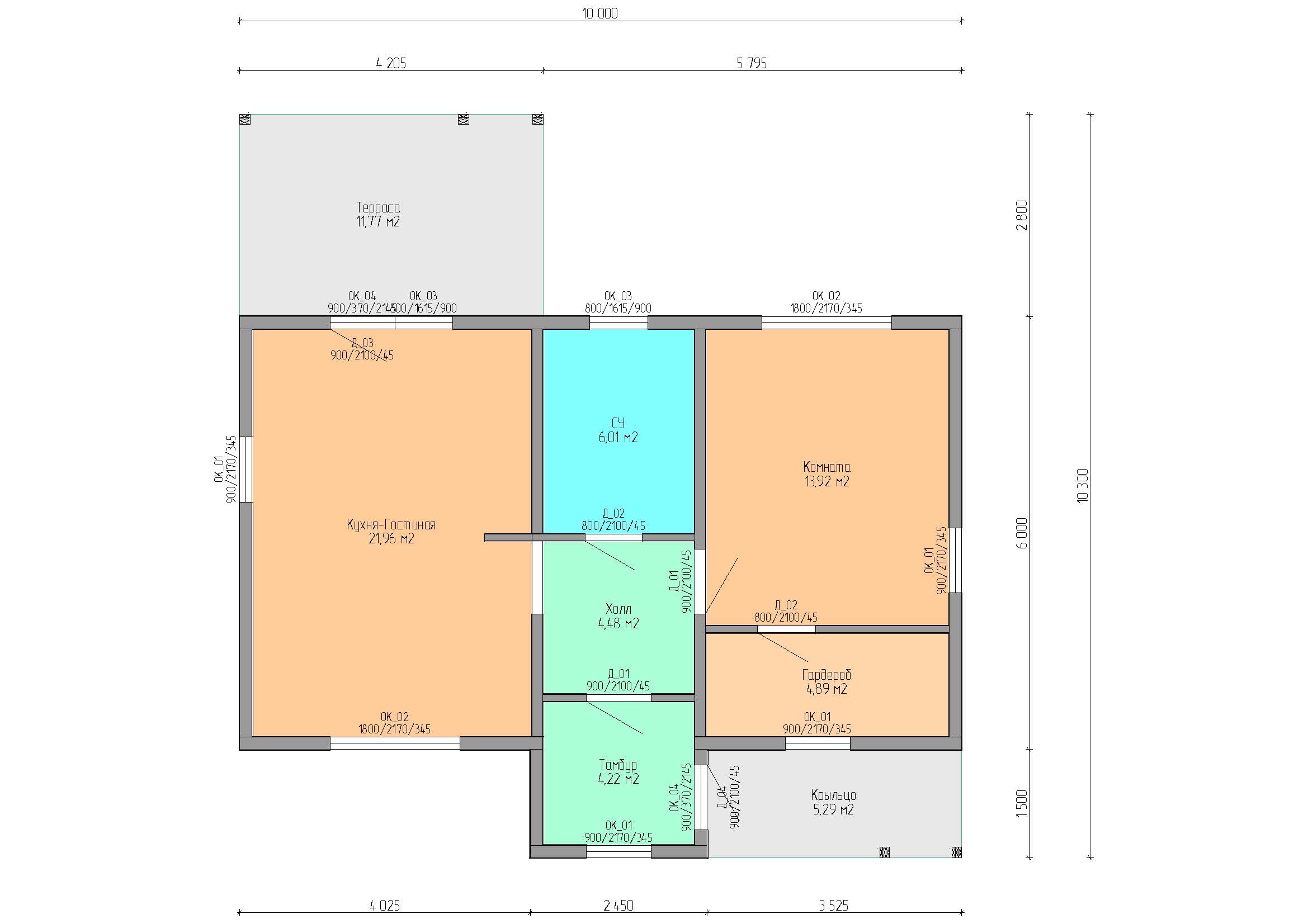
В указанную стоимость входит:
1. Фундамент ЖБ сваи 150х150х3000 или свайно-винтовой, 108х2500.
2. Обвязка брусом или из срощенных досок.
3. Цокольное перекрытие СИП-панель 224 мм.
4.Наружные стены СИП-панель 174мм.
5. Межкомнатные перегородки каркасные 95/145 мм. без заполнения.
6. Чердачное перекрытие СИП-панель 174мм.
7. Стропильная система.
8. Металлочерепица, профлист.
9. Окна ПВХ с двухкамерным стеклопакетом.
10. Стальная входная дверь.
11. Пиломатериал камерной сушки. Антисептированный.
