Описание
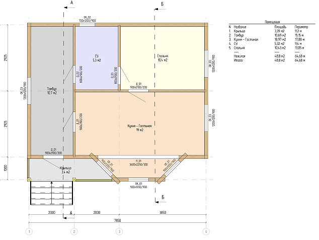
Дом изготовлен из пильного бруса 150*150 мм с эркером. тропильная система Линейные размеры дома 7,85*6,85 м.
Площадь дома 53,7 м2
Дом собран на деревянных нагелях и пружинных узлах « Сила»
Меду бруса уложен меж-венцовый утеплитель – Джут
Фундамент – жб сваи 150 *150 *300 мм Сваи заглублены на глубину 2500 мм при промерзании почвы 1500 – 1800 мм
Половые и потолочные балки брус 510*200 мм.
Черновые полы и потолки доски 25 мм
Стропила – доска 50*200 мм через 590 мм под утеплитель.
Обрешётка – доска 25 *150 мм
Контр – обрешётка – брусок 50*500 мм
Гидроветрозащита – 3 х слойная мембрана
Крыша – металлочерепица с доборами. ( конёк, ветровые и карнизные планки )
