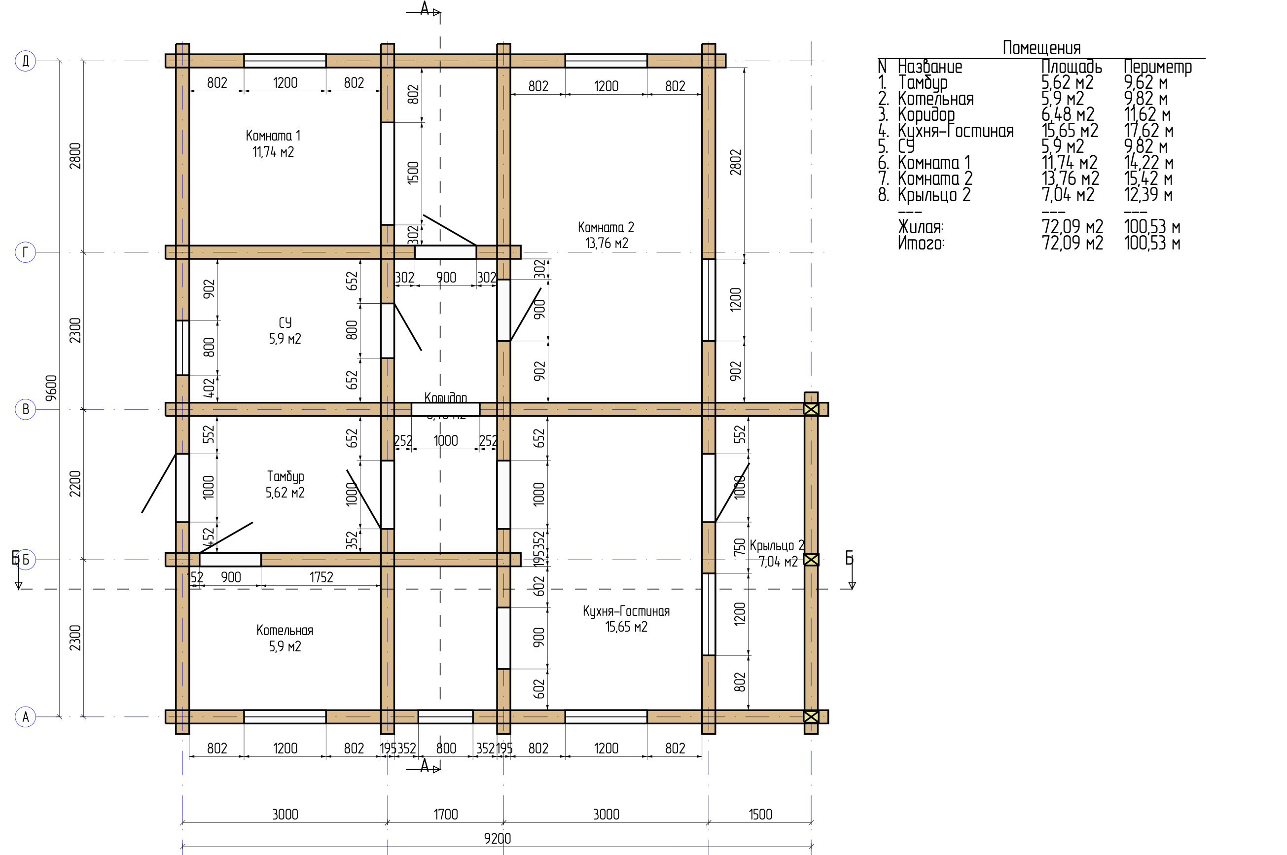
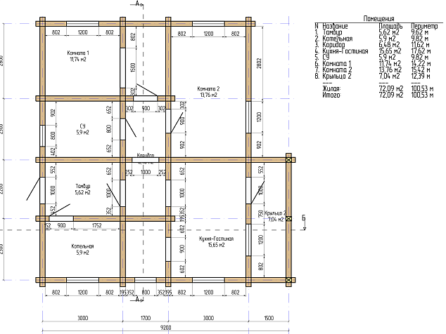
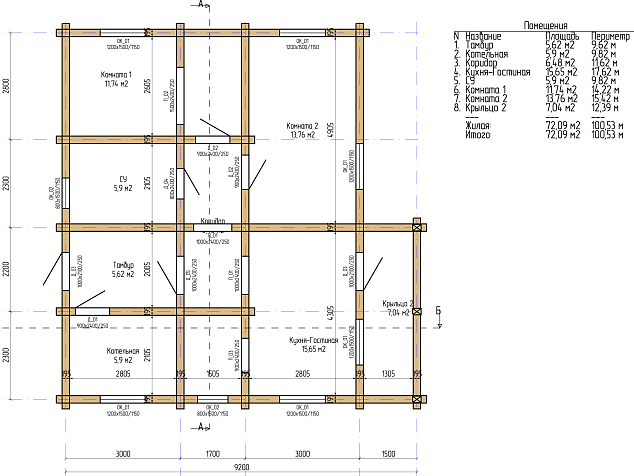
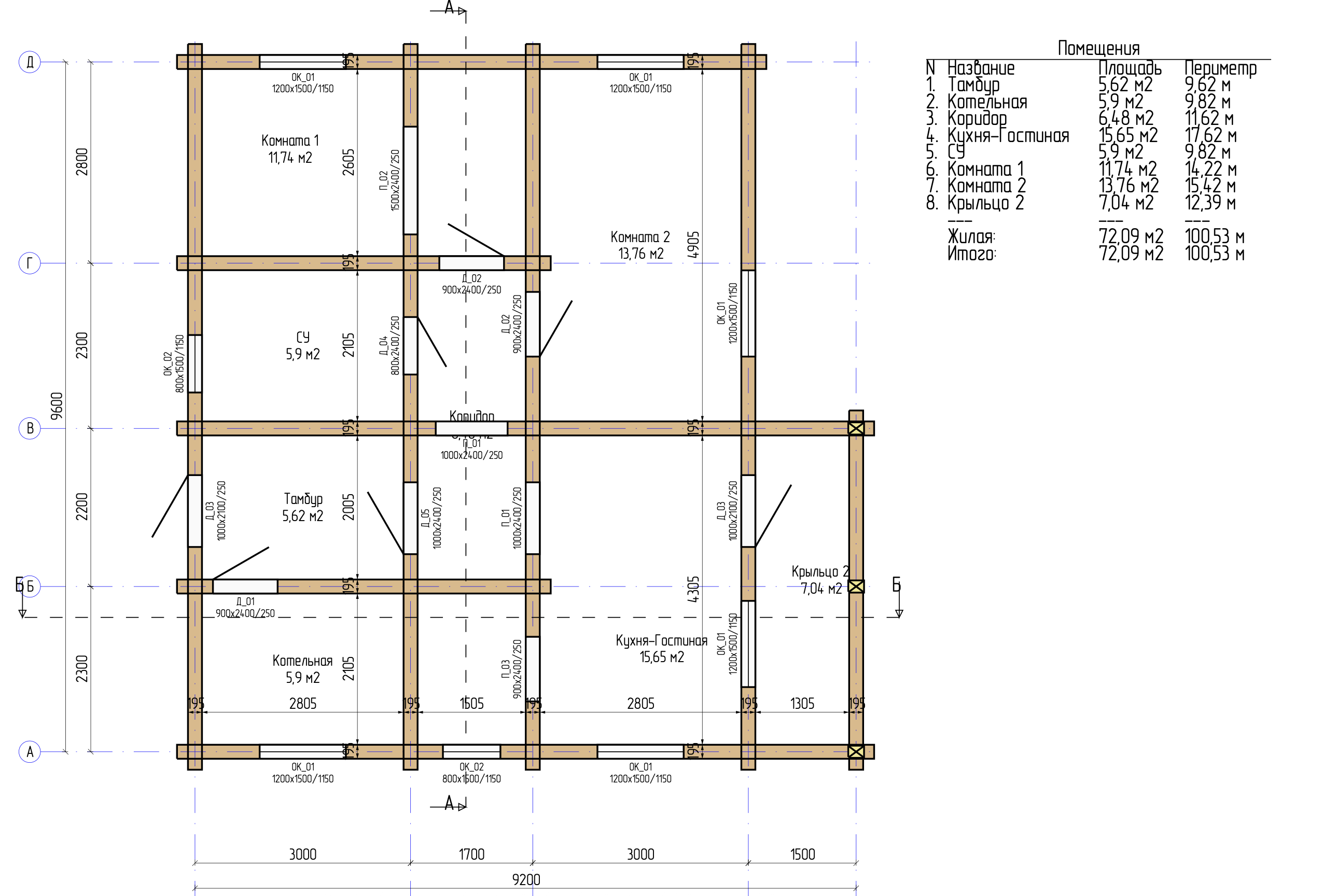
Типовые проекты
Компания Свой Сруб предлагает весь комплекс услуг по строительству деревянных домов, бань, беседок под ключ. Делая выбор в нашу пользу, вы получаете следующие преимущества:
-
Широкий выбор типовых проектов деревянных домов из бруса, бревна с возможностью бесплатной доработки.
-
Собственное производство и лесозаготовка, что гарантирует использование при строительстве только качественного северного леса Вологодской области.
-
Приемлемые цены и возможность привлечения государственного финансирования.
-
Высокое качество строительства в любой точке России, благодаря многолетнему опыту бригад.
- Оплата делиться на много этапов, в зависимости от стоимости проекта
Мы реализуем вашу мечту и подарим настоящий деревянный дом под ключ, который станет любимым место для отдыха и постоянного проживания.
