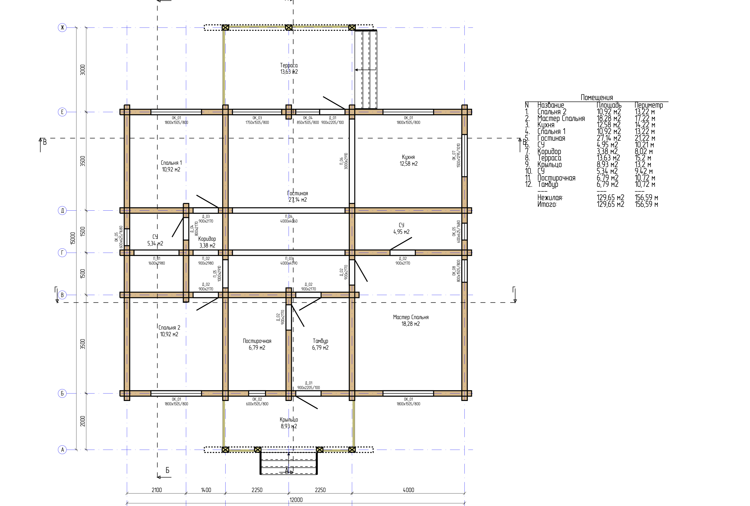
Описание
Дом из профилированного бруса камерной сушки сечением 150*200 мм с чашами под проект
Размеры дом 12*15 м.
Стеновой комплект собран на деревянных нагелях и пружинных узлах.
Комплектация:
1. Фундамент – жб- сваи 150*150*3000
2. Стеновой комплект – брус камерной сушки
3. Черновые полы и потолки .
4. Стропильная система в сборе с гидроизоляцией.
Крыша – металлочерепица с доборами